Оставьте свой номер телефона и мы перезвоним вам

Закрыть
 

Нажимая кнопку "Отправить", вы принимаете условия обработки персональных данных

Трансинжиниринг

Ваш город: Не определен

 

АдресРаботаем по всей России

ГрафикРежим работы: ПН-ПТ с 8:00 до 17:00

E-mailsale@k-ti.ru

 

8 800 551-77-47

Звонок по России бесплатный

Написать в Whatsapp
Заказать звонок
 
Меню
 

Элеватор ковшовый ленточный в Ижевске

 

Трансинжиниринг / Продукция / Нории и ковшовые элеваторы / Элеватор ковшовый ленточный

ТрансинжинирингИзготовим по индивидуальному заказу!

от 14 000 рублей за метр

 
 
 
 

Мы делали этот товар для:

Влево
Dagphos
Habez
Diamix
Монтажные технологии
Dagphos
Habez
Diamix
Монтажные технологии
Dagphos
Habez
Diamix
Монтажные технологии

 
Вправо
 

Применение:

  • Строительство
  • Горнодобывающая промышленность
  • Металлургические, химические, стеклокерамические комплексы и др.

Подробную информацию о товаре и условиях сотрудничества узнавайте у наших специалистов по телефону8 800 551-77-47.

Есть вопросы? Звони!

Тел:8 800 551-77-47

Звонок по России бесплатный
 
 
 
 
 

Описание

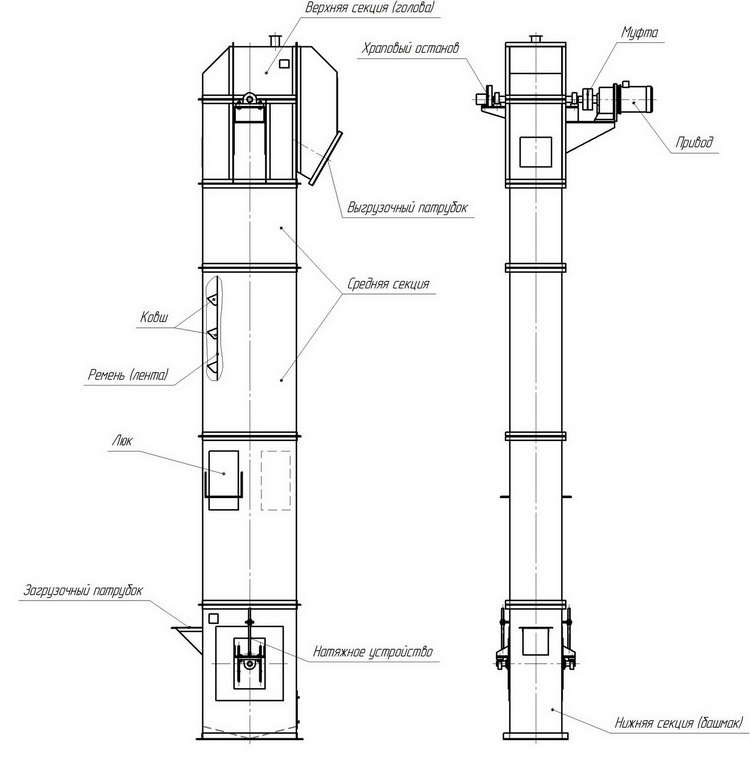
Элеватор ковшовый ленточный предназначен для вертикального транспортирования насыпных порошкообразных, зернистых, мелкокусковых и среднекусковых материалов. Данное оборудование не рекомендуется использовать для транспортировки муки или пылящих материалов, способных образовывать взрывоопасную смесь. Максимальная производительность - 150 м3/час, ограничение по температуре – не выше 200°С.

При подборе оборудования существенную роль играет размер ковша: если материал не склонен к слеживанию и не утрамбовывается, то используется глубокий ковш, для грузов с низкой сыпучестью рекомендуются элеваторы с мелким ковшом. Основные узлы и механизмы: — привод (электродвигатель с редуктором, мотор-редуктор); — головная секция; — средняя секция; — транспортерная лента или ремнь; — ковши; — башмак (секция натяжная) Расположение привода – в верхней части ковшового элеватора.

Предоставим комплектующие и запчасти к предлагаемым изделиям.

 
 

Стоимость типовых конструкций можно узнать у наших менеджеров; цена на элеваторы ковшовые, изготавливаемые по техническому заданию заказчика, рассчитывается индивидуально.

 
 
 
 
 
 

Остались вопросы?

Оставьте заявку и наш менеджер свяжется с вами

 
 
Отправить
 
Нажимая кнопку «Отправить», вы принимаете условия обработки персональных данных
 

Продукция

 

О компании

 

Контакты

 
 

 

 

© 2016-2024 ООО «ТрансИнжиниринг». Все права защищены.